Top.Mail.Ru

Автономная канализация "Топас (С) 8" от Топол-Эко с установкой под ключ в Тюмени и области

  • для 8 пользователей
  • биологическая аэробная / анаэробная переработка
  • степень очистки до 98%
  • без запаха
  • простое обслуживание без откачки

Автономная канализация "Топас (С) 8" от Топол-Эко с установкой под ключ в Тюмени и области

  • для 8 пользователей
  • биологическая аэробная / анаэробная переработка
  • степень очистки до 98%
  • без запаха
  • простое обслуживание без откачки

Вызвать инженера

бесплатно подберем модель и рассчитаем смету на участке

СЕПТИК ТОПАС - 8 / ТОПАС С - 8

SKU: 700.954.29
176490
р.
200
р.
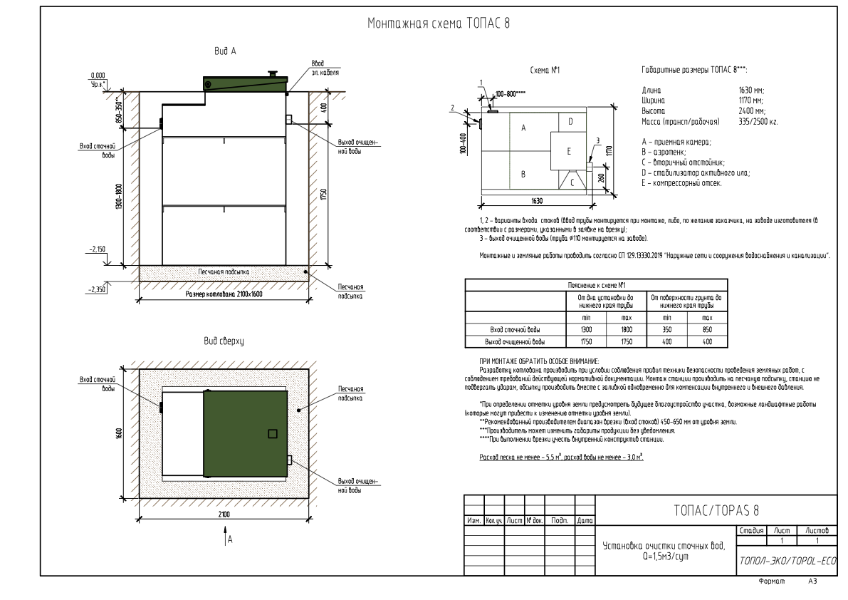
Септик Топас 8 – это современное решение для организации автономной канализации в частном доме или даче. Данная модель рассчитана на обслуживание 8-х постоянно / сезонно проживающих пользователей канализации. Подойдет семье с большим водопотреблением проживающей в частном доме или на даче.

Благодаря современным технологиям очистки сточных вод, Топас 8 обеспечивает высокую степень очистки воды – до 98%, что делает возможным её повторное использование для технических нужд, полива неплодоносящих растений или сброс в грунт без вреда окружающей среде.

Корпус септика выполнен из прочного полипропилена, устойчивого к коррозии и механическим повреждениям. Обслуживание септика простое и не требует специальных знаний и сводится к периодической чистке септика (от 2 раз в год при постоянном проживании) без вызова илососной машины.

Требования к установке септика Топас 8 в частном доме

  • количество постоянных пользователей канализации 3 - 8 человек
  • единовременный залповый сброс не более - 440 литров
  • объем расхода воды в сутки не более - 1500 литров
  • глубина залегания канализационной магистрали: не ниже 85 см для стандартной модификации (105 см при наращивании корпуса); не ниже 145 см для модификации Long (165 см при наращивании корпуса); не ниже 145 см для модификации Long УС (до 245 см при наращивании корпуса)
  • возможность обустройства дренажной системы или сброса очищенной воды на рельеф
  • возможность подключения к электрической сети 220в
Как септик Топас справляется с переработкой сточных вод?
Основной характеристикой септика Топас является его способность обеспечивать высокий уровень очистки сточных вод. Этот результат достигается за счет гармоничного сочетания аэробных и анаэробных процессов очистки. Метод переключения режимов работы станции выполнен простым, но весьма эффективным способом. При изменении направления аэрации в отдельных отсеках станции происходит автоматическое переключение между аэробной и анаэробной очисткой, а также регулируется переток сточных вод внутри установки. На первый взгляд это может показаться сложным, но на деле представляет собой простую чередующуюся смену циклов работы. Такой подход гарантирует равномерный состав сточных вод в каждом отсеке станции. Благодаря этому процесс технического обслуживания значительно упрощается и исключает необходимость вызова илососной машины.

Эффективность очистки сточных вод соответствует строгим нормативным стандартам и может достигать 98%, что исключает попадание загрязненных стоков в природу. При этом постоянная работа системы не вызывает неприятных запахов, что позволяет устанавливать септик вблизи жилых помещений. Компактные размеры и легкий вес устройства обеспечивают удобство транспортировки и монтажа.

Корпус септика надежно защищает от проникновения грунтовых вод благодаря водонепроницаемой конструкции. Устойчивость к внешним воздействиям обеспечена за счет использования ребер жесткости и продуманного дизайна. Зимний холод не станет преградой для эксплуатации септика — модели Топас успешно функционируют в различных климатических условиях.

Высокие показатели очистки, экологическая безопасность и надежность системы подтверждены многочисленными тестами, санитарно-гигиеническими заключениями и сертификатами. Биостанции Топас зарекомендовали себя как эффективное и удобное решение для очистки сточных вод, успешно работающие по всей России и за ее пределами в самых разных климатических условиях.

Принцип работы септика Топас

В этом видеоролике подробно объясняется, как работает септик Топас, система очистки сточных вод, которая обеспечивает эффективное и экологичное решение для частных домов и дач. Видео расскажет о принципах функционирования устройства, его этапах очистки, а также особенностях монтажа и обслуживания. Видео стоит посмотреть, чтобы иметь полное понимание работы септика Топас

Рассчитать стоимость Топас 8 под ключ

Характеристики септика Топас 8

Характеристики Топас 8

Количество пользователей: до 8 человек
Залповый сброс: 440 литров
Объем переработки: 1500 литров / сутки
Степень очистки стоков: до 98%

Электропотребление: 1-1,5 КВт / сутки
Размеры (д х ш х в): 1,63 х 1,17 х 2,5-3,1 м
Вес: 350 - 495 кг

Монтаж септика Топас 8

При монтаже станций биоочистки Топас строго следуйте инструкциям, указанным в техдокументации. Обеспечьте соблюдение всех мер безопасности при проведении строительных работ по установке септика Топас. Важно соблюдать действующие строительные нормативы и стандарты на протяжении всего процесса монтажа.

Для обеспечения качества монтажа и сохранения гарантии производителя вы можете обратиться за услугой «Шеф-монтаж», которая позволит контролировать процесс установки оборудования Топас, либо доверить выполнение этих задач официальному представителю компании-производителя. Мы занимаемся установкой систем Топас начиная с 2013 года и имеем значительный опыт в этой сфере.

Отзывы пользователей о канализации Топас

Популярные модели септиков Топас

Часто задаваемые вопросы о септике Топас 8

мы собрали наиболее распространенные вопросы о станции Топас

Где и как купить септик Топас 8 в Тюмени

купить септик Топас с установкой под ключ от официального представителя производителя в Тюмени

рассчитать под ключ здесь
подробнее о способах оплаты и доставки здесь
+7 3452 531551
info@newseptiks.ru
Тюмень • Харьковская 77, офис 707

Согласен на обработку персональных данных

политика конфиденциальности

Отзывы о нашей работе

собрали все отзывы о наших установках на разных площадках, чтобы вы смогли оценить нашу работу